Product Category
XGN66-12 Type Fixed Enclosed Switchgear
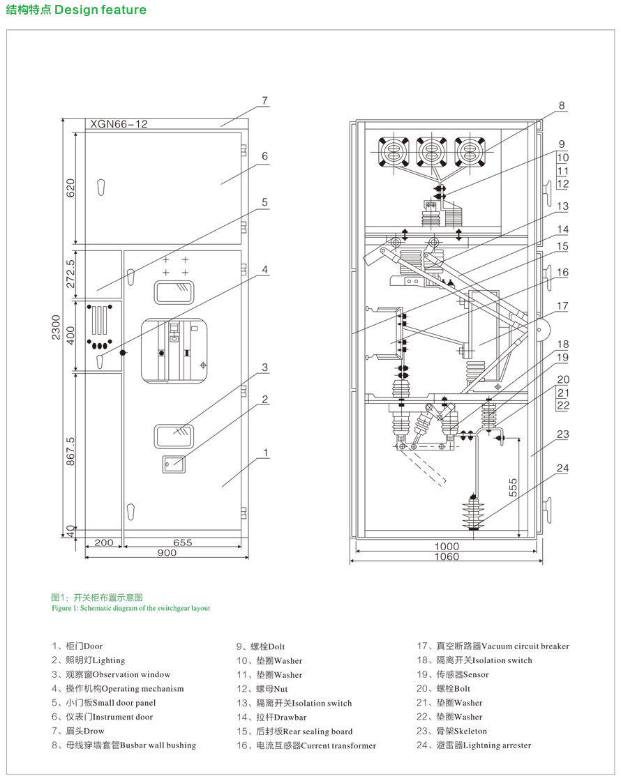
The cabinet body is welded with angle steel. The circuit breaker room is located in the middle (lower) part of the cabinet, which is convenient for installation, commissioning and maintenance. It is equipped with QCE1 circuit breaker as standard, and is equipped with a pressure release channel for personal safety. The reliable rotary disconnector can safely enter the circuit breaker room for overhaul under the main bus live power.





